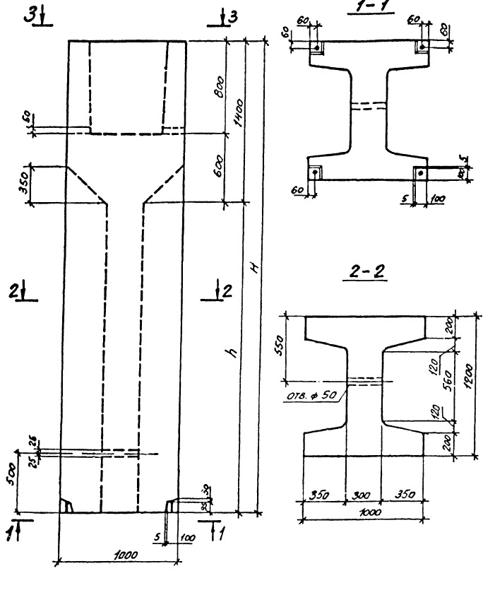
Блок-стакан верхний ВБ 9-10-15-4 представляет собой элемент железо-бетонных конструкций, используемых в строительстве. Он имеет специальную форму, которая обеспечивает прочное соединение с другими блоками-стаканами. Благодаря высоким техническим характеристикам и качественным материалам, из которых изготовлен этот блок, он обладает долгим сроком службы и надежностью.
Блок-стакан верхний ВБ 9-10-15-4 применяется в строительстве для создания железо-бетонных конструкций различного назначения. Он используется при возведении зданий, мостов, тоннелей, а также других инженерных сооружений. Благодаря своей прочности и устойчивости к воздействию внешних факторов, этот блок обеспечивает надежность и долговечность конструкций, в которых он применяется.









