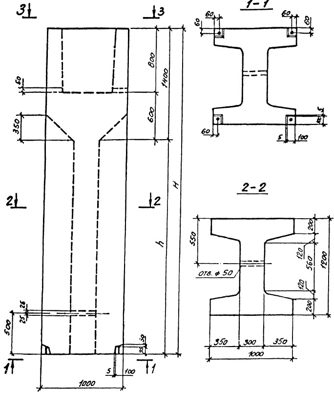
Блок-стакан верхний ВБ 10-12-60-2 представляет собой элемент железо-бетонных конструкций, который используется для соединения и укрепления бетонных блоков. Он имеет специальную форму, которая обеспечивает надежное соединение блоков между собой, образуя прочную и устойчивую конструкцию.
Блок-стакан верхний ВБ 10-12-60-2 широко применяется в строительстве для создания железо-бетонных конструкций различного назначения. Он используется при возведении стен, перегородок, фундаментов, колонн и других элементов зданий и сооружений. Благодаря своей прочности и надежности, блок-стакан верхний ВБ 10-12-60-2 обеспечивает долговечность и устойчивость конструкций к различным воздействиям.









