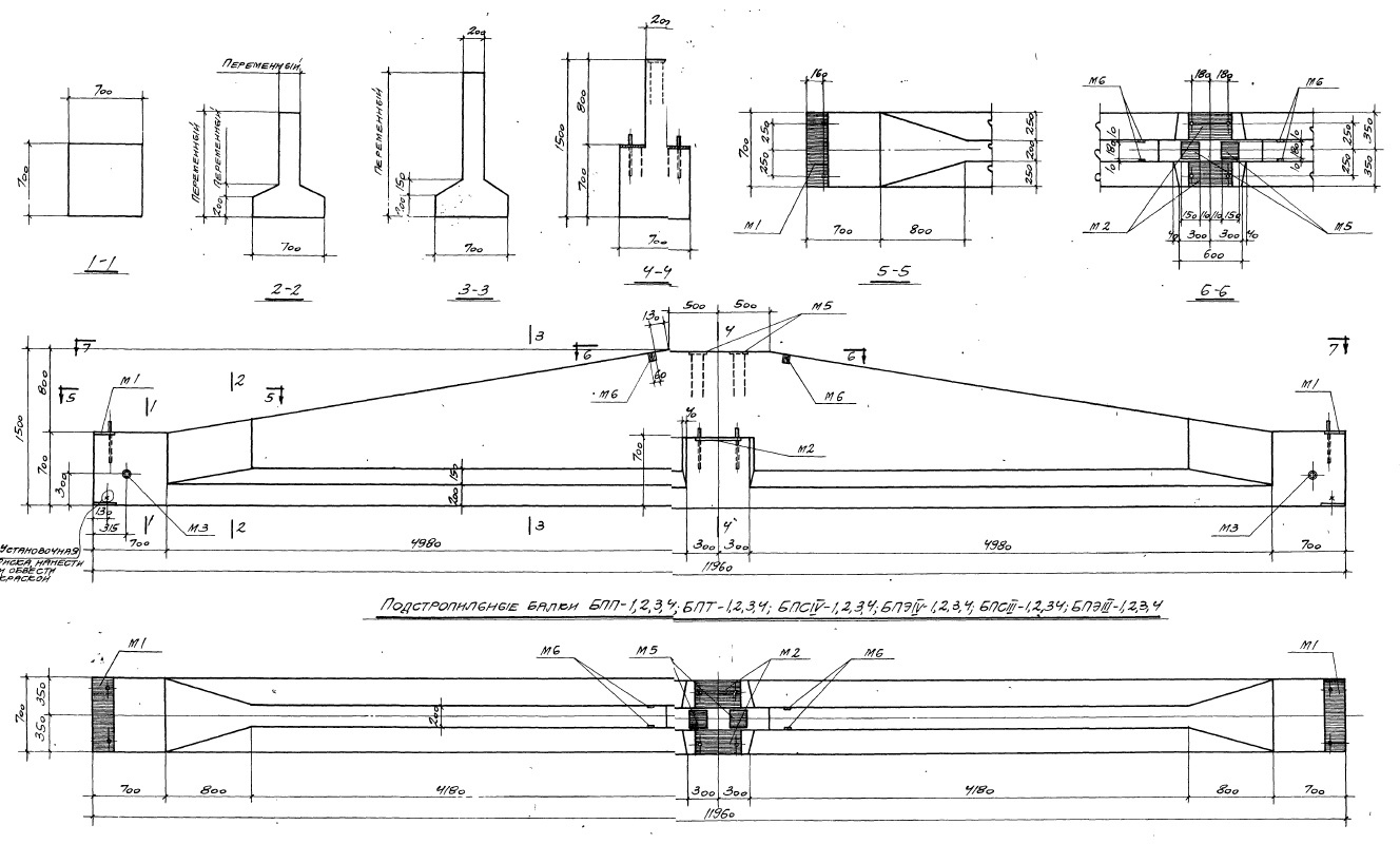
Балка подстропильная БПП 2 к предназначена для использования в строительстве как элемент каркаса кровли. Изготовлена из железобетона, что обеспечивает высокую прочность и долговечность конструкции. Балка имеет специальное пазообразное соединение для удобства монтажа и обеспечивает надежную фиксацию на стропилах.
Балка подстропильная БПП 2 к широко используется при строительстве жилых и коммерческих зданий для создания каркаса кровли. Она обеспечивает необходимую опору для кровельного материала и способствует равномерному распределению нагрузки на стропила. Благодаря высокой прочности и надежности конструкции, балка подстропильная БПП 2 к является незаменимым элементом при возведении кровельных конструкций.









