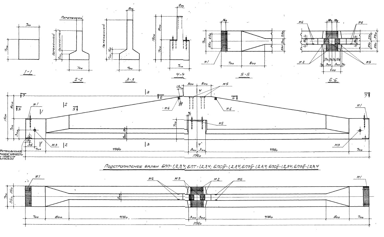
Балка подстропильная БПЭ IV-1 предназначена для использования в строительстве крыш и потолков. Изготовлена из железобетона, что обеспечивает прочность и долговечность конструкции. Благодаря специальной форме и размерам, балка легко монтируется и обеспечивает надежную поддержку строительных элементов.
Балка подстропильная БПЭ IV-1 идеально подходит для использования в строительстве жилых домов, административных зданий, складов и других объектов. Она может быть использована как в новом строительстве, так и при реконструкции уже существующих зданий. Благодаря высоким техническим характеристикам, данная балка обеспечивает надежную поддержку кровли или потолка, что делает ее необходимым элементом при возведении любого здания.









