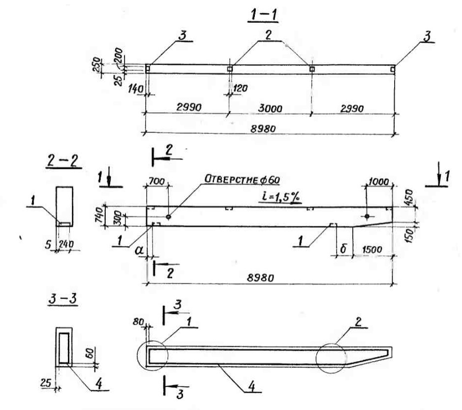
Балка навеса 2БН 6-4 предназначена для использования в строительстве как несущий элемент для создания навесов, козырьков, навесных конструкций и других архитектурных элементов. Изготовлена из железобетона, что обеспечивает высокую прочность и долговечность конструкции.









